8-800-201-65-87
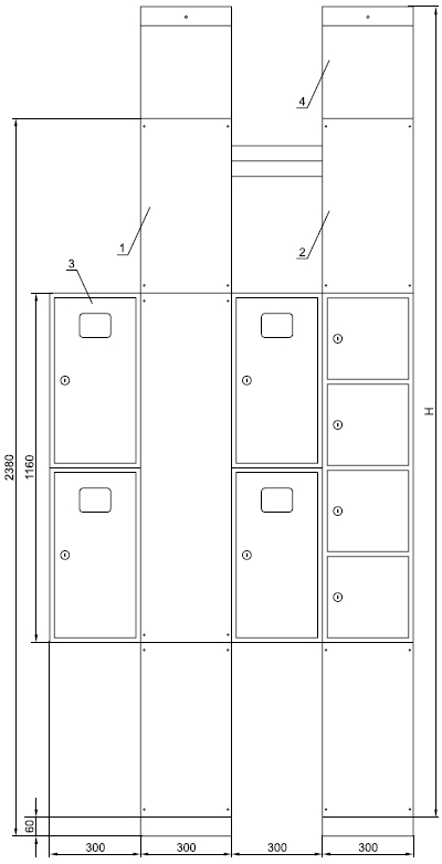
Корпус устройства этажного распределительного модульного УЭРМ используется для изготовления на его основе УЭРМ. В свою очередь УЭРМ предназначено для приема, учета и распределения электроэнергии в сетях 380/220 В, а также размещения устройств слаботочных сетей (теле- и радиосетей, телефонных линий, домофонов и т.п.) и оборудования автоматической системы контроля и учета электропотребления АСКУЭ. Корпус УЭРМ представляет собой сборно-разборную конструкцию, состоящую из отдельных элементов: короба электротехнического (КЭТ), в котором прокладывается силовой кабель, короба связи и сигнализации (КСС), ящиков учета и распределения (ЯУР), а также компенсаторов для возможности регулировки по высоте.

| № поз. | Наименование |
| 1 | Короб КЭТ |
| 2 | Короб КСС |
| 3 | ЯУР |
| 4 | Компенсатор высоты |
| Типоисполнение | Н, мм |
| УЭРМ_х_2500 | 2500 |
| УЭРМ_х_2600 | 2600 |
| УЭРМ_х_2700 | 2700 |
| УЭРМ_х_2800 | 2800 |
| УЭРМ_х_2850 | 2850 |
| УЭРМ_х_2950 | 2950 |
| УЭРМ_х_3300 | 3300 |
| УЭРМ_х_3850 | 3850 |
| Наименование | Артикул |
| Корпус металлический УЭРМ-2-2500 УХЛ3 IP31 | IND-2-2500-1 |
| Корпус металлический УЭРМ-2-2600 УХЛ3 IP31 | IND-2-2600-1 |
| Корпус металлический УЭРМ-2-2700 УХЛ3 IP31 | IND-2-2700-1 |
| Корпус металлический УЭРМ-2-2800 УХЛ3 IP31 | IND-2-2800-1 |
| Корпус металлический УЭРМ-2-2850 УХЛ3 IP31 | IND-2-2850-1 |
| Корпус металлический УЭРМ-2-2950 УХЛ3 IP31 | IND-2-2950-1 |
| Корпус металлический УЭРМ-2-3300 УХЛ3 IP31 | IND-2-3300-1 |
| Корпус металлический УЭРМ-2-3850 УХЛ3 IP31 | IND-2-3850-1 |
| Корпус металлический УЭРМ-3-2500 УХЛ3 IP31 | IND-3-2500-1 |
| Корпус металлический УЭРМ-3-2600 УХЛ3 IP31 | IND-3-2600-1 |
| Корпус металлический УЭРМ-3-2700 УХЛ3 IP31 | IND-3-2700-1 |
| Корпус металлический УЭРМ-3-2800 УХЛ3 IP31 | IND-3-2800-1 |
| Корпус металлический УЭРМ-3-2850 УХЛ3 IP31 | IND-3-2850-1 |
| Корпус металлический УЭРМ-3-2950 УХЛ3 IP31 | IND-3-2950-1 |
| Корпус металлический УЭРМ-3-3300 УХЛ3 IP31 | IND-3-3300-1 |
| Корпус металлический УЭРМ-3-3850 УХЛ3 IP31 | IND-3-3850-1 |
| Корпус металлический УЭРМ-4-2500 УХЛ3 IP31 | IND-4-2500-1 |
| Корпус металлический УЭРМ-4-2600 УХЛ3 IP31 | IND-4-2600-1 |
| Корпус металлический УЭРМ-4-2700 УХЛ3 IP31 | IND-4-2700-1 |
| Корпус металлический УЭРМ-4-2800 УХЛ3 IP31 | IND-4-2800-1 |
| Корпус металлический УЭРМ-4-2850 УХЛ3 IP31 | IND-4-2850-1 |
| Корпус металлический УЭРМ-4-2950 УХЛ3 IP31 | IND-4-2950-1 |
| Корпус металлический УЭРМ-4-3300 УХЛ3 IP31 | IND-4-3300-1 |
| Корпус металлический УЭРМ-4-3850 УХЛ3 IP31 | IND-4-3850-1 |
Корпус металлический УЭРМ-2-2500 УХЛ3 IP31